Nowoczesny budynek w centrum miasta. Idealny na pomieszczenia biurowe, handlowe bądź przychodnię medyczną. Dostępne powierzchnie: handlowa od 50- 150 m², biurowa 150-450 m².
Informacje o lokalu
| Dostepność : | w ciągu trzech miesięcy |
| Pięter w budynku : | 4 |
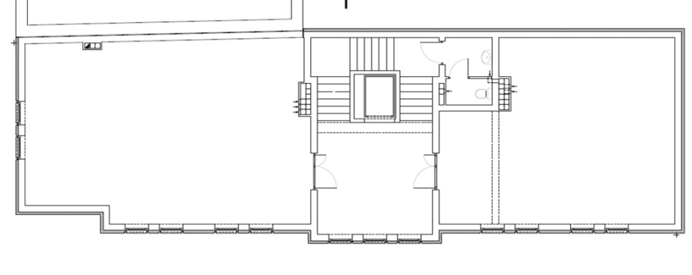
| Całkowita powierzchnia | 900 m² |
| Parter | 50 – 150 m² |
| Biurowe | 150 – 450 m² |
| Parking | 20 miejsc |
Standard wykończeń
- Wysoki standard
- Okablowanie telefoniczne
- Okablowanie komputerowe
- Okablowanie elektryczne
- Elegancka elewacja pokryta piaskowcem
- Atrakcyjny przeszklony parter handlowy
- Elastyczny układ wnętrz daje szerokie możliwości aranżacji
- Dzięki wysokiej klasy materiałom budynek jest energooszczędny i zapewnia niższe koszty eksploatacji
Udogodnienia
- Całodobowa ochrona i monitoring
- Recepcja
- Szatnia
- Centrala telefoniczna
- Wygodna winda
- Parking przed budynkiem
- Otwarty plan pięter umożliwiający łatwy podział
- Podjazd dla niepełnosprawnych (opcja)
W bezpośrednim sąsiedztwie
- Sąd Rejonowy
- Urząd Miasta
- Teatr Powszechny
- Centrum Handlowe
- Przedszkole, Liceum, Szkoła Muzyczna
Lokalizacja
Budynek położony w centrum miasta, u zbiegu ulic Kelles-Krauza i Staszica, w odległości kilkunastu metrów od Urzędu Miejskiego.
” width=”600″ height=”450″ frameborder=”0″ allowfullscreen=”allowfullscreen”>








